Solitude Express

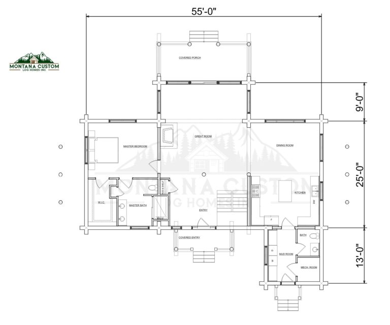
Spanning 3 bedrooms and 2.5 baths, the Solitude Express offers an expansive, family-friendly retreat. The main-level master suite provides convenience and privacy, while two upstairs bedrooms and a loft create additional gathering or workspace. A spacious U-shaped kitchen and open great room make entertaining easy, with seamless access to a covered back deck. Balanced with practical features like a mudroom, laundry, and upper balcony, this design blends luxury with Montana practicality.

Specifications

  • 3 bedrooms
  • 2.5 bathrooms
  • Open floorplan
  • Covered front entry
Request Pricing