Rock Creek

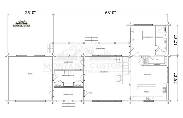
Our Rock Creek cabin combines rustic comfort with thoughtful design across 2,929 sq. ft. This plan features 2 bedrooms (one up, one down), each with generous storage and the master offering an ensuite bath and walk-in closet. The L-shaped kitchen with a large island opens to the great room, anchored by a zero-clearance fireplace. Three covered porches and an attached garage make this cabin as practical as it is beautiful.

Specifications

  • 2 bedrooms
  • Laundry w/ mudroom
  • Large kitchen (with island)
  • 2,930 sq. ft.
Request Pricing